Subdivision & Land Development Projects
Last Update: 01/14/26
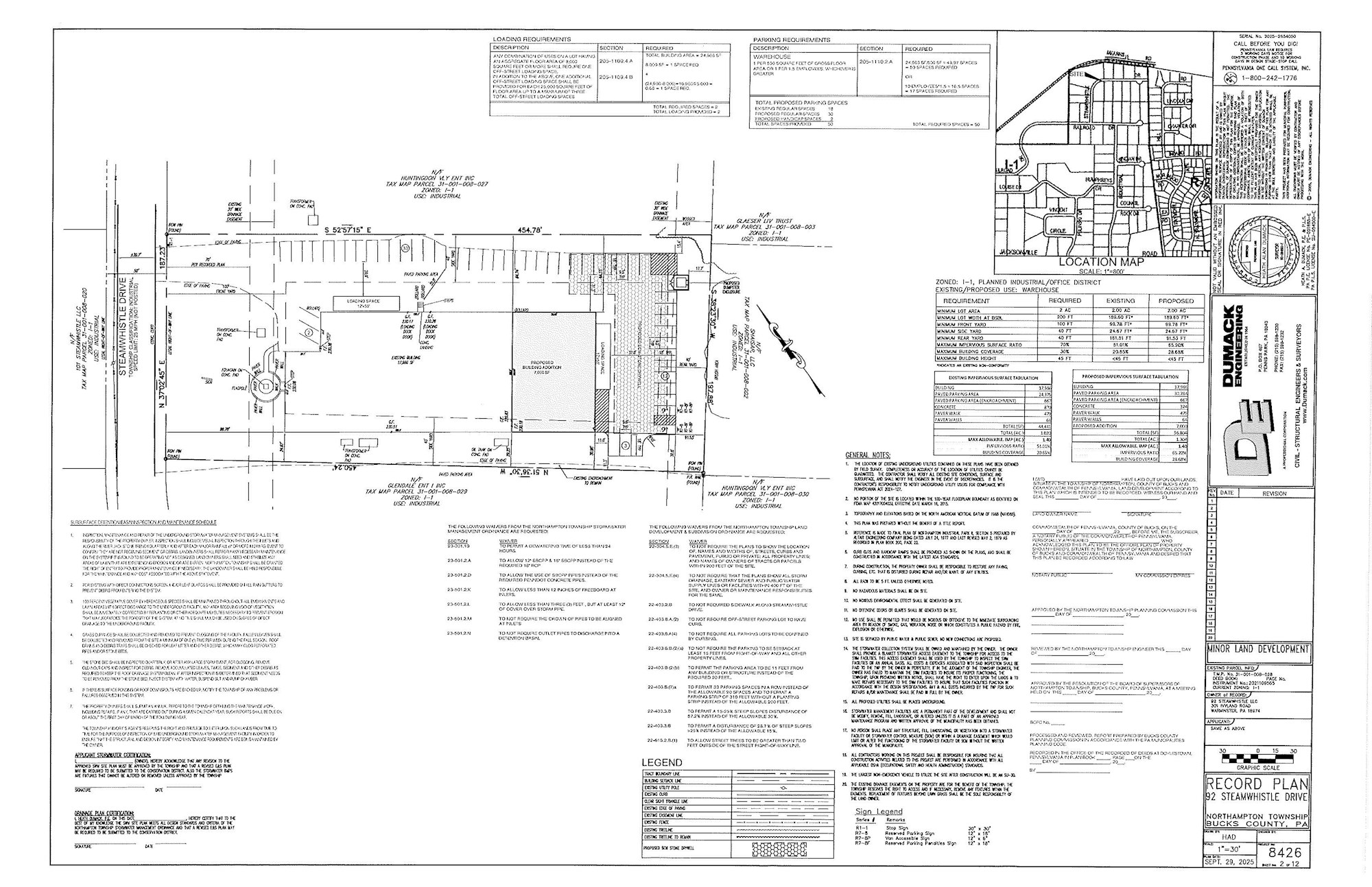
92 Steamwhistle Drive Land Development
- Status: Under Review
- Location: 92 Steamwhistle Drive, Ivyland, PA
- Project Summary: 7,000 square foot building addition
- Click Here for Plan
Russell Gardens Subdivision
- Status: Planning Commission - Plan Approved January 13, 2026. Moves to the Board of Supervisors for Final Approval January 28, 2026
- Location: 600 New Road, Churchville, PA
- Project Summary: eighteen (18) lot subdivision of single-family detached dwellings
- Click Here for Plan |
400 Twining Ford Road Subdivision
- Status: Under Review
- Location: 400 Twinning Ford Road, Richboro, PA
- Project Summary: six (6) lot subdivision of single-family detached dwellings
- Click Here for Plan |
Mill Race Inn
- Status: Approved 02/26/25
- Location: 183 Buck Road, Holland, PA 18966
- Project Summary: 33 residential condos and the renovation of the existing Mill Race Inn for office use
- Click Here for Plan | Click Here to Watch Supervisor Discussion
66 Richard Road
- Status: Approved 12/11/24
- Location: 66 Richard Road, Ivyland, PA 18974
- Project Summary: 10,900 square foot addition with parking
- Click Here for Plan | Click Here to Watch Supervisor Discussion
JQ Investments
- Status: Approved 01/22/25
- Location: 27 Almshouse Road, Richboro, PA 18954
- Project Summary: New 935-square-foot office building
- Click Here for Plan | Click Here to Watch Supervisor Discussion
Flood Land Development
- Status: Approved 12/11/24
- Location: 215 Railroad Drive, Ivyland, PA 18974
- Project Summary: 7,500 square-foot accessory building
- Click Here for Plan | Click Here to Watch Supervisor Discussion
Axial Medical
- Status: Approved 01/22/25
- Location: 65 Richard Road, Ivyland, PA 18974
- Project Summary: 1,933 square foot addition
- Click Here for Plan | Click Here to Watch Supervisor Discussion
1280 Grenoble Road Minor Subdivision
- Status: Approved 03/26/25
- Location: 1280 Grenoble Road, Ivyland, PA 18974
- Project Summary: 1 New Residential Lot
- Click Here for Plan | Click Here to Watch Supervisor Discussion